Azure Engineering

Raw Water Treatment Desalination Plant

Case Study 1: Raw Water Treatment Desalination Plant
Water Treatment Solutions
Case Study 01

Raw Water Treatment Desalination Plant

Project Overview

Client

Basra Oil Company

Location

Majnoon Oil Field

Specialized EPC Contractor

Gulf Water Treatment CO. LTD.

Purchaser

China Petroleum Engineering & Construction Corporation (CPECC)

Consultant

KBR

Key Design & Features

๐Ÿ”ง Pre-treatment System

Coagulation and Sedimentation: Raw feed water is pumped to a coagulation tank for the removal of larger particles. The process uses tube settlers to enhance sedimentation efficiency.

Multimedia Filters (MMF): Designed to remove suspended solids and reduce the Silt Density Index (SDI) of feed water, with backwashing utilizing RO reject water.

๐Ÿ’ง Reverse Osmosis System

High-Pressure Pumps: Designed for optimal feed flow and pressure to maximize recovery rates.

RO Membrane Technology: Polyamide composite membranes provide 99.8% salt rejection and produce water with <500 mg/L salinity.

Two-Stage RO Configuration: Improves recovery rates and permeate water quality.

๐Ÿงช Post-treatment System

UV Sterilization Unit: Provides effective disinfection, ensuring microbial safety in treated water.

Chemical Dosing Systems: Includes dosing of anti-scalants, sodium bisulfite (SMBS), and pH adjustment for process optimization.

Technical Highlights

Feed Water TDS
5,160 mg/L
Permeate Flow
5 CMH
Recovery Rate
70%
Membranes
6 Elements
Hydranautics/FilmTec

Piping Material

SS316 for high-pressure sections, UPVC for drains, and CPVC for chemical dosing lines

Containerized and Modular Design

Three 40-ft High-Cube Containers: All components are pre-assembled, including pre-treatment, RO, and chemical dosing systems.

Thermal insulation, air conditioning, and exhaust fans are provided to ensure operational stability.

Instrumentation

PLC-based controls with real-time monitoring of pH, conductivity, and flow.

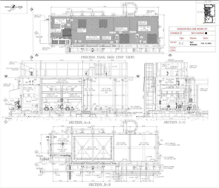
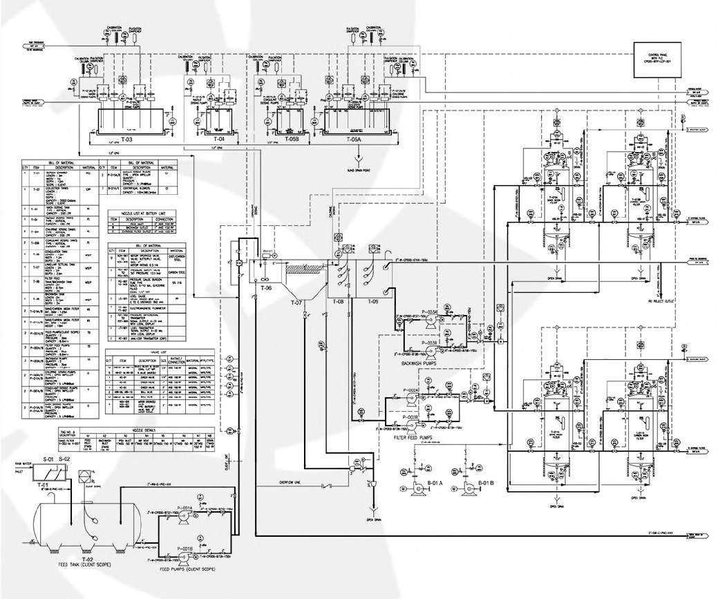
Process Diagrams

Process Diagram 1
Process Flow Diagram - Overview
Process Diagram 2
Process Flow Diagram - Detailed
Process Diagram 3
Process Flow Diagram - Components

3D Models & Design

3D Model 1
3D Model - Overall Plant Layout
3D Model 2
3D Model - RO System Detail
3D Model 3
3D Model - Pre-treatment Section

Completed Project

Completed Project 1
Completed Plant - External View
Completed Project 2
Completed Plant - Control Panel
Completed Project 3
Completed Plant - Piping System
Completed Project 4
Completed Plant - RO Unit

Project Documentation